- existant
- existant
- projet
- projet
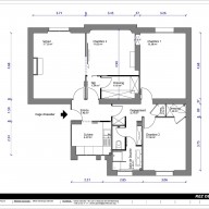
Projet : Réhabilitation d’un appartement
Situation : Paris, 15ème arrondissement
Maître d’ouvrage : Particulier
Surface du projet : 84 m²
Budget : 46 000 € HT
Mission complète
Livraison : 2012
Cet appartement classique avec parquet, soubassements, cheminées et moulures a été entièrement rénové pour répondre aux normes actuelles. De plus, nous avons profité de ce projet pour inverser la cuisine et la salle de bains. L’appartement ainsi redistribué présente une zone jour (séjour, salle à manger, cuisine) bien séparée de la zone nuit (deux chambres et salle de bains). La salle à manger peut devenir par un simple jeu de portes coulissantes, une troisième chambre.



